Trilocale in vendita

Cavriago, Via Ernesto Arduini
€ 285.000
3 locali 3 locali
158 Mq 158 Mq
2 bagni 2 bagni

Trilocale in vendita

Cavriago, Via Ernesto Arduini

Descrizione annuncio

Cavriago, prestigioso trilocale al piano terra con giardino ed ingresso indipendente all'interno di una corte privata.

Collocato in una posizione strategica, facilmente raggiungibile si trova a pochi minuti dal centro del paese e dai principali servizi che offre il comune di Cavriago.

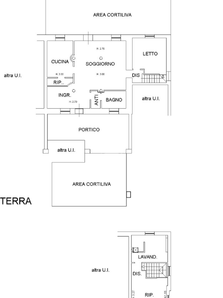
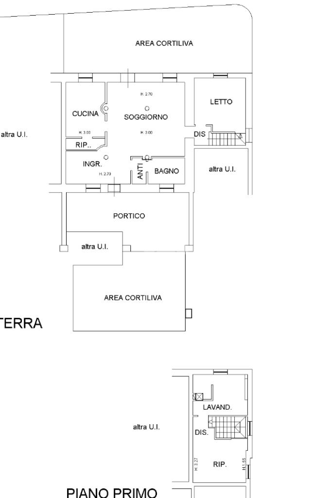
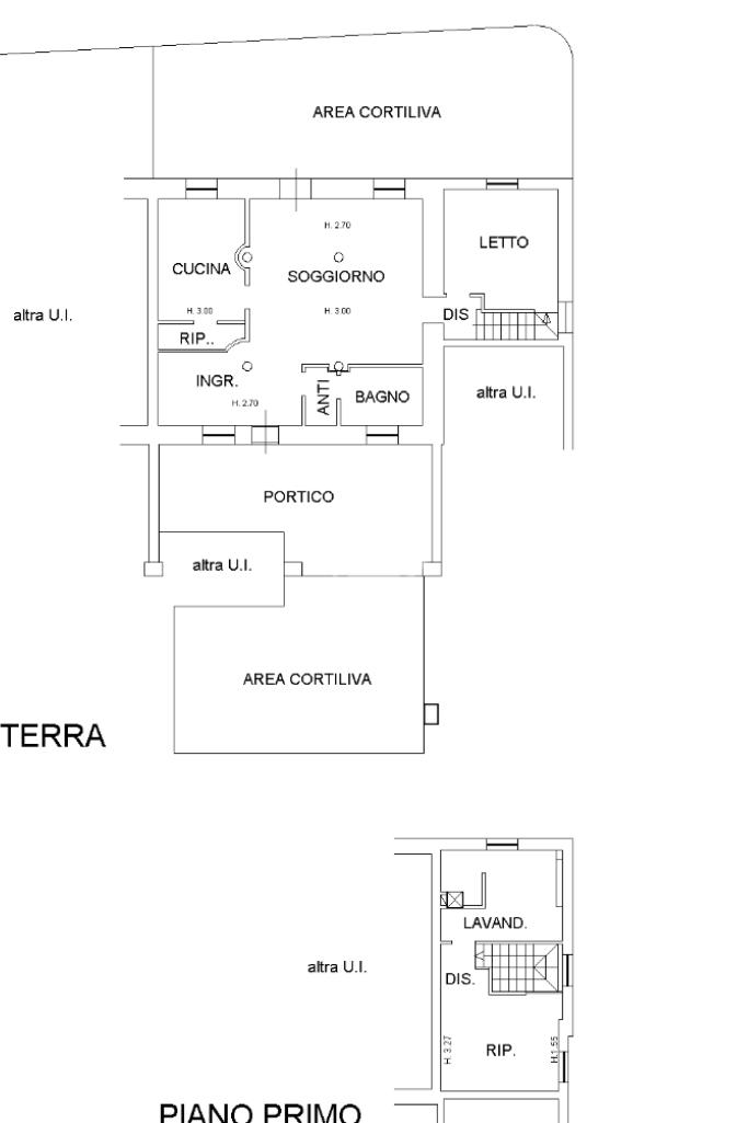
L'immobile è disposto su due livelli, dove al piano terra veniamo accolti dal cuore della casa il soggiorno, caratterizzato da archi e colonne a vista, cucina separata e abitabile con dispensa a scomparsa tramite porta scorrevole, antibagno e bagno finestrato con box doccia in muratura, e per concludere il piano terra la prima delle due camere matrimoniali, percorrendo la scala si raggiunge l'ultimo piano dell'immobile dove la privacy è sovrana, nel dettaglio dalla seconda camera matrimoniale in stile liberty e dal secondo bagno con vasca ad incasso e vano lavanderia.

Giardino sulla parte frontale e posteriore dell'immobile, ideale per chi ama il verde o gli animali.

L'ingresso all'unità condominiale è consentito ai soli condomini, tramite accesso pedonale oppure tramite il comodo passo carraio con cancello motorizzato, il condominio è composto da sole 5 unità immobiliari, inoltre è presente in corpo staccato un doppio garage in larghezza .

Per ulteriori informazioni non esitate a contattarci oppure venite a trovarci in agenzia a Cavriago in Via della Repubblica 41.

Mostra tutto

Nelle vicinanze

Trasporto pubblico Trasporto pubblico
Cavriago - Zona Artigianale Est
Cavriago - Zona Artigianale Est
1,1 Km
Cavriago - Sanremo
Cavriago - Sanremo
1,2 Km
Cavriago
Cavriago
880 m
Codemondo
Codemondo
940 m
Ricariche auto elettriche Ricariche auto elettriche
Conad Cavriago | EnelX
850 m
Cavriago Dalla Chiesa | EnelX
890 m
CAVRIAGO Lenin | ENELX
990 m
Cavriago Multiplo | EnelX
1,2 Km
CAVRIAGO Lama | ENELX
1,7 Km
Scuole Scuole
Scuole
1,3 Km
Scuola primaria San Bartolomeo
2,5 Km
Farmacia Farmacia
Farmacia comunale Codemondo
1,4 Km
Farmacia San Bartolomeo
2,9 Km
Supermercati Supermercati
CONAD SUPERSTORE
1,1 Km
Coop Cavriago
2,0 Km
La Collina
2,5 Km
Negozi Negozi
Negozi
1,4 Km
Bar Bar
Bar Tabacchi Mixer 2
1,4 Km
Bar
2,0 Km
Ristoranti Ristoranti
Cantina Garibaldi
1,3 Km
Ristoranti
1,5 Km
Pantagruel
1,7 Km
Ristorante Self Service Il Punto
1,9 Km
Osteria del Pescatore
2,5 Km
Mostra tutto

Caratteristiche

Rif.:
61201774
Piano:
Terra con giardino di 1
Totale piani:
1
Box:
1
Camere da letto:
2
Arredamento:
Parziale
Mostra tutto
Prezzo Prezzo
€ 285.000
Rata mutuo Rata mutuo
€ 1.347 / mese
Spese annue Spese annue
€ 930
Proponi il tuo prezzoProponi il tuo prezzo

Classe Energetica

D
D
D
D
D
D
D
D
D
EP globale non rinnovabile:
121.15 kW h/m² anno
EP invernale del fabbricato:
EP estiva del fabbricato:
Anno di costruzione:
2009
Riscaldamento:
Autonomo
Tipo impianto:
A radiatori
Tipo alimentazione:
Metano

Ti interessa visionare l'immobile?

Fissa un appuntamento  Fissa un appuntamento

Richiedi informazioni

Clicca su Leggi per aprire l'informativa
* Questi campi sono obbligatori

Calcola il tuo mutuo

Semplice e senza impegno
Anticipo

( % )
Mutuo

( % )

pochi semplici passi

inserisci i tuoi dati
Questionario completato
Grazie per aver richiesto un appuntamento senza impegno con un nostro Consulente del Credito e Assicurativo.

Hai inserito correttamente tutti i dati necessari e a breve riceverai una e-mail con un link da convalidare per inviare i tuoi dati.
Affiliato
Studio Cavriago Srl
Via Della Repubblica, 41 42025 Cavriago (RE)

Il nostro staff


  • Diego Scarano
    Affiliato

  • Antonio Prisco
    Collaboratore

  • Matteo Scarano
    Responsabile

  • Sasiwimon Somwong
    Collaboratrice
Via Della Repubblica, 41 42025 Cavriago (RE)
Zona: Cavriago-Bibbiano-Barco-Villa Cella
Mostra su mappa
Orari: LUNEDI/VENERDI 9:00/13:00-15:00/20:00 SABATO CHIUSURA ORE 13
Affiliato
Studio Cavriago Srl
Via Della Repubblica, 41 42025 Cavriago (RE)

2026 Tecnocasa Franchising S.p.A. - P. IVA 08365160152 - Via Monte Bianco 60/A 20089 Rozzano (MI). Ogni agenzia ha un proprio titolare ed è autonoma. Privacy policy | Policy utilizzo | Cookie policy