Quadrilocale in vendita

Cavriago, Via codignolo
€ 165.000
4 locali 4 locali
111 Mq 111 Mq
1 bagno 1 bagno

Quadrilocale in vendita

Cavriago, Via codignolo

Descrizione annuncio

Cavriago, quadrilocale al piano terra, senza spese condominiali, in zona centrale comoda ai servizi a pochi passi dal centro.

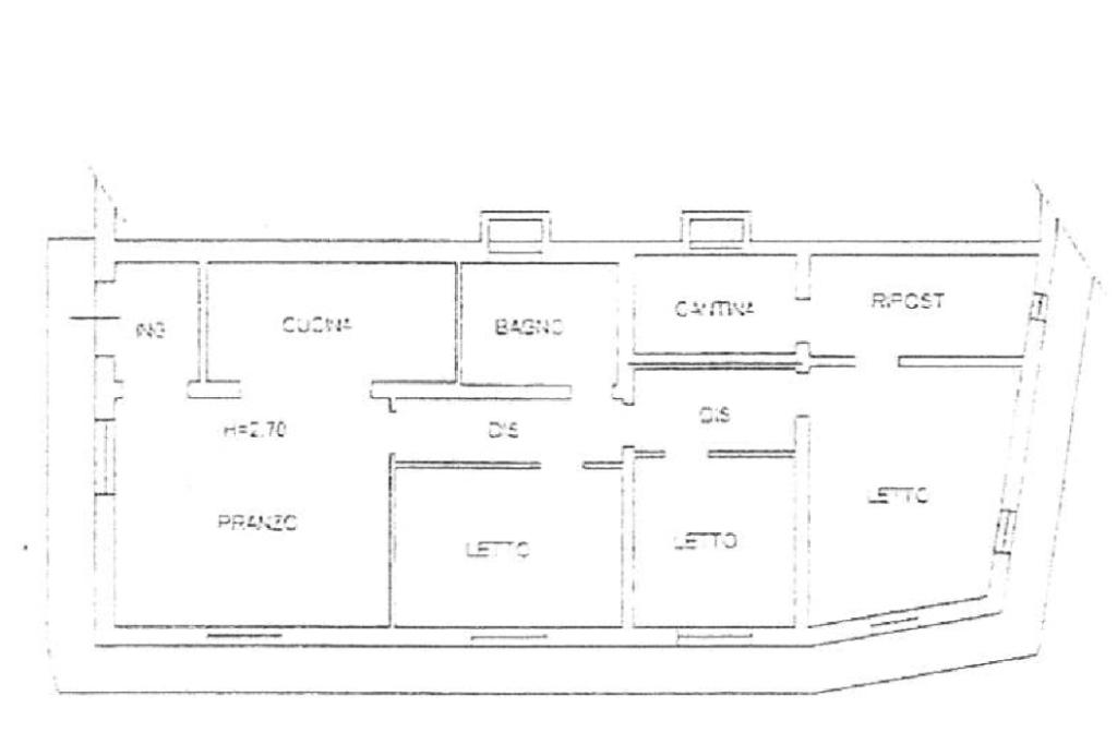
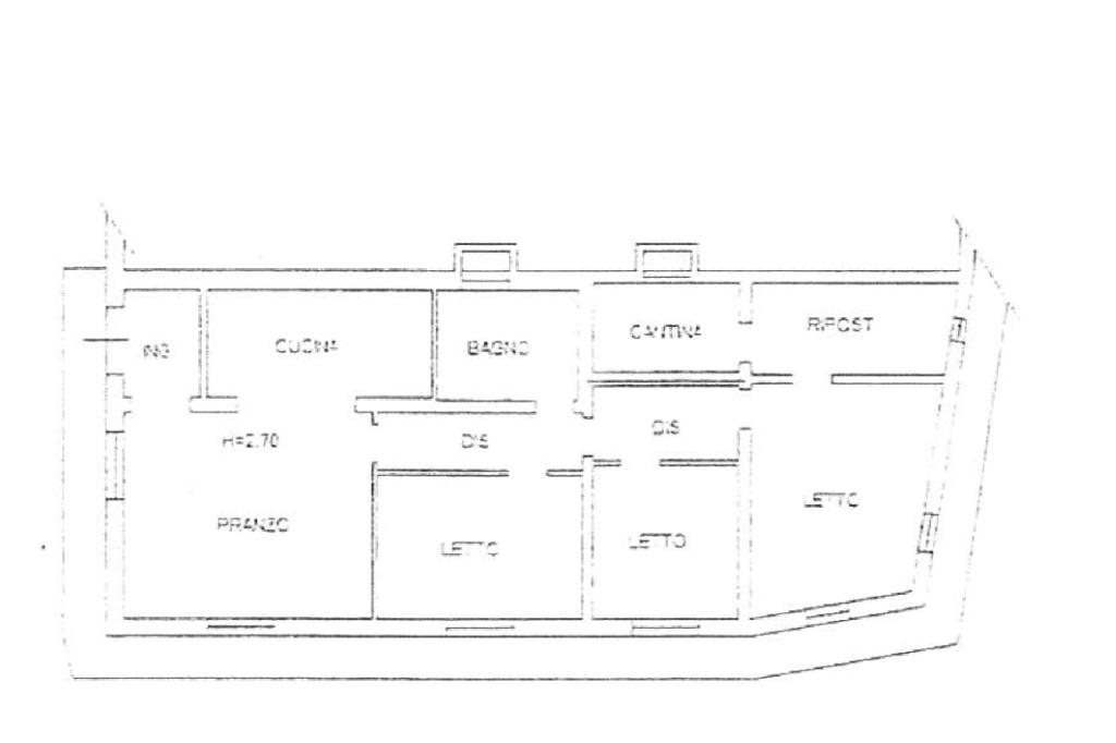
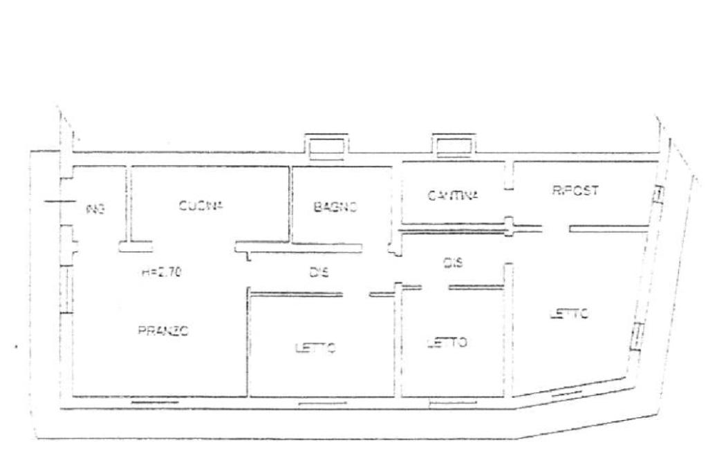
Collocato all'inizio di una strada chiusa, l'immobile è dotato di ingresso indipendente, composto da zona d'ingresso, soggiorno, cucina abitabile, disimpegno con 3 camere da letto, bagno cieco, ripostiglio e cantina; In corpo staccato garage singolo con basculante manuale.

L'appartamento è accessoriato di doppi vetri, infissi in legno, zanzariere, inferriate, caldaia in ottimo stato, pronto all'uso senza bisogno di ulteriori ristrutturazioni.

Per ulteriori informazioni o per fissare una visita non esitate a contattarci oppure venite a trovarci in agenzia a Cavriago in Via della Repubblica 41.

Mostra tutto

Nelle vicinanze

Trasporto pubblico Trasporto pubblico
Bivio Barco
Bivio Barco
2,1 Km
Barco
Barco
2,5 Km
Cavriago
Cavriago
90 m
Cavriago - Sanremo
Cavriago - Sanremo
570 m
Cavriago
Cavriago
670 m
Ricariche auto elettriche Ricariche auto elettriche
Cavriago Multiplo | EnelX
390 m
CAVRIAGO Lenin | ENELX
640 m
Cavriago Pianella | EnelX
730 m
Conad Cavriago | EnelX
770 m
Cavriago Dalla Chiesa | EnelX
830 m
Scuole Scuole
Scuole
200 m
Scuola primaria San Bartolomeo
2,1 Km
Farmacia Farmacia
Farmacia comunale Codemondo
2,0 Km
Farmacia San Bartolomeo
2,4 Km
Farmacia Aldini
2,6 Km
Supermercati Supermercati
CONAD SUPERSTORE
590 m
Coop Cavriago
720 m
Sigma
2,3 Km
Negozi Negozi
Negozi
310 m
Bar Bar
Bar Tabacchi Mixer 2
2,2 Km
Ristoranti Ristoranti
Cantina Garibaldi
220 m
Osteria della Capra
2,0 Km
Ristoranti
2,2 Km
Mostra tutto

Caratteristiche

Rif.:
61157374
Piano:
Terra
Box:
1
Camere da letto:
3
Arredamento:
Parziale
Condizionamento:
Autonomo
Mostra tutto
Prezzo Prezzo
€ 165.000
Rata mutuo Rata mutuo
€ 777 / mese
Spese annue Spese annue
€ 0
Proponi il tuo prezzoProponi il tuo prezzo

Classe Energetica

F
F
F
F
F
F
F
F
F
EP invernale del fabbricato:
EP estiva del fabbricato:
Anno di costruzione:
1991
Riscaldamento:
Autonomo
Tipo impianto:
A radiatori
Tipo alimentazione:
Metano

Ti interessa visionare l'immobile?

Fissa un appuntamento  Fissa un appuntamento

Richiedi informazioni

Clicca su Leggi per aprire l'informativa
* Questi campi sono obbligatori

Calcola il tuo mutuo

Semplice e senza impegno
Anticipo

( % )
Mutuo

( % )

pochi semplici passi

inserisci i tuoi dati
Questionario completato
Grazie per aver richiesto un appuntamento senza impegno con un nostro Consulente del Credito e Assicurativo.

Hai inserito correttamente tutti i dati necessari e a breve riceverai una e-mail con un link da convalidare per inviare i tuoi dati.
Affiliato
Studio Cavriago Srl
Via Della Repubblica, 41 42025 Cavriago (RE)

Il nostro staff


  • Diego Scarano
    Affiliato

  • Antonio Prisco
    Collaboratore

  • Matteo Scarano
    Responsabile
Via Della Repubblica, 41 42025 Cavriago (RE)
Zona: Cavriago-Bibbiano-Barco-Villa Cella
Mostra su mappa
Orari: LUNEDI/VENERDI 9:00/13:00-15:00/20:00 SABATO CHIUSURA ORE 13
Affiliato
Studio Cavriago Srl
Via Della Repubblica, 41 42025 Cavriago (RE)

2026 Tecnocasa Franchising S.p.A. - P. IVA 08365160152 - Via Monte Bianco 60/A 20089 Rozzano (MI). Ogni agenzia ha un proprio titolare ed è autonoma. Privacy policy | Policy utilizzo | Cookie policy