Trilocale in vendita

Bibbiano, Via Camillo Prampolini
€ 185.000
3 locali 3 locali
120 Mq 120 Mq
2 bagni 2 bagni

Trilocale in vendita

Bibbiano, Via Camillo Prampolini

Descrizione annuncio

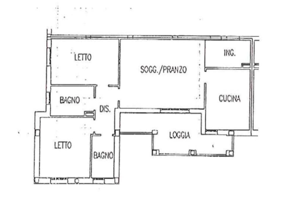
Bibbiano, ampio trilocale al secondo piano con ascensore in palazzina di pregio a pochi passi dal centro del paese, preservato in ottime condizioni, disponibile da subito.

L'appartamento è disposto su un unico livello ed è composto da una comoda zona d'ingresso con armadio a muro, per poi procedere nel soggiorno di oltre 30m, ampia loggia vivibile, cucina abitabile, zona notte con due camere da letto matrimoniali e due bagni finestrati.

Doppi vetri, infissi in legno, zanzariere, aria condizionata, porta blindata, scuri in legno sono solo alcune delle ottime finiture presenti all'interno dell'appartamento. A completare l'abitazione è presente al piano interrato una cantina ed un doppio garage in lunghezza.

Per ulteriori informazioni o per fissare una visita non esitate a contattarci oppure venite a trovarci in agenzia a Cavriago in Via della Repubblica 41.

Mostra tutto

Nelle vicinanze

Trasporto pubblico Trasporto pubblico
Bibbiano
Bibbiano
430 m
Piazzola
Piazzola
2,8 Km
Bibbiano Via Monti
Bibbiano Via Monti
800 m
Bibbiano - Fossa
Bibbiano - Fossa
1,1 Km
Scuole Scuole
Scuole
270 m
Scuola media Dante Alighieri
290 m
Scuola primaria Neria Secchi
770 m
Farmacia Farmacia
Farmacia
270 m
Parafarmacia Conad
370 m
Farmacia Nuova
780 m
Supermercati Supermercati
Conad
360 m
Mostra tutto

Caratteristiche

Rif.:
61203602
Piano:
2 di 3 con ascensore (Piano medio)
Box:
1
Posti auto:
2
Terrazzi:
1
Camere da letto:
2
Mostra tutto
Prezzo Prezzo
€ 185.000
Rata mutuo Rata mutuo
€ 872 / mese
Spese annue Spese annue
€ 1.000
Proponi il tuo prezzoProponi il tuo prezzo
Immobile valutato con T·Valuta

Classe Energetica

F
F
F
F
F
F
F
F
F
EP invernale del fabbricato:
EP estiva del fabbricato:
Anno di costruzione:
2005
Riscaldamento:
Autonomo
Tipo impianto:
A radiatori
Tipo alimentazione:
Metano

Ti interessa visionare l'immobile?

Fissa un appuntamento  Fissa un appuntamento

Richiedi informazioni

Clicca su Leggi per aprire l'informativa
* Questi campi sono obbligatori

Calcola il tuo mutuo

Semplice e senza impegno
Anticipo

( % )
Mutuo

( % )

pochi semplici passi

inserisci i tuoi dati
Questionario completato
Grazie per aver richiesto un appuntamento senza impegno con un nostro Consulente del Credito e Assicurativo.

Hai inserito correttamente tutti i dati necessari e a breve riceverai una e-mail con un link da convalidare per inviare i tuoi dati.
Affiliato
Studio Cavriago Srl
Via Della Repubblica, 41 42025 Cavriago (RE)

Il nostro staff


  • Diego Scarano
    Affiliato

  • Antonio Prisco
    Collaboratore

  • Matteo Scarano
    Responsabile

  • Sasiwimon Somwong
    Collaboratrice
Via Della Repubblica, 41 42025 Cavriago (RE)
Zona: Cavriago-Bibbiano-Barco-Villa Cella
Mostra su mappa
Orari: LUNEDI/VENERDI 9:00/13:00-15:00/20:00 SABATO CHIUSURA ORE 13
Affiliato
Studio Cavriago Srl
Via Della Repubblica, 41 42025 Cavriago (RE)

2026 Tecnocasa Franchising S.p.A. - P. IVA 08365160152 - Via Monte Bianco 60/A 20089 Rozzano (MI). Ogni agenzia ha un proprio titolare ed è autonoma. Privacy policy | Policy utilizzo | Cookie policy